Armario para alumbrado público

 

fabricantes homologados

FABRICANTE

TIPOS

METALICO

AISLANTE

AGAD,S.A.

CA-30

PA-30

HIMEL

KM1210/APB

PL1212T/APB

 

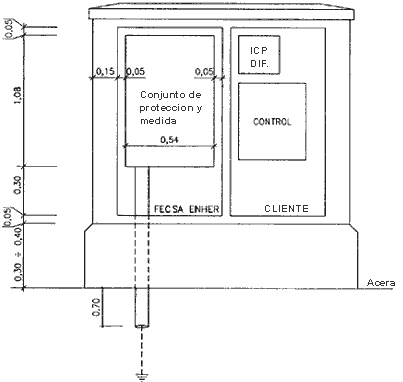
Compartimento FECSA-ENHER   

   Compartimento CLIENTE

 

Armario de obra para alumbrados públicos hasta 31,5 kW

 

Nota: El armario podrá ser de un solo compartimento, previo acuerdo con FECSA-ENHER.